Skip to main content

ПОМЕСТЬЕ ПОД БАРСЕЛОНОЙ

Побережье Гарраф и Коста-Дорада
  • 1.800 м2
  • 750.000 м2
5.000.000 €
Информация
  • КОД №: 661B
  • Цена: 5.000.000 €
  • Типология: Инвестиции
  • Район: ПОБЕРЕЖЬЕ ГАРРАФ
  • Город/посёлок/деревня: СИТДЖЕС
  • Удаленность от Барселоны: 45 км
  • Площадь: 1.800 м 2
  • Площадь участка: 750.000 м 2

Описание

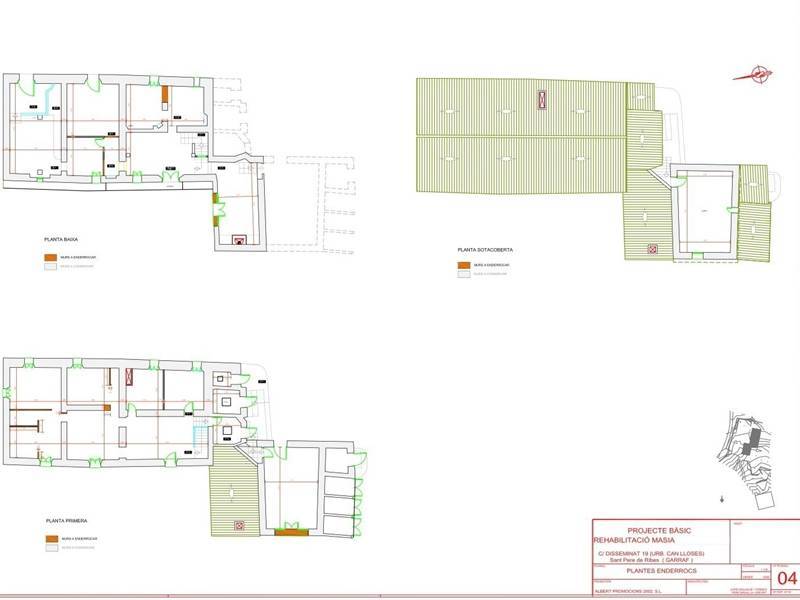
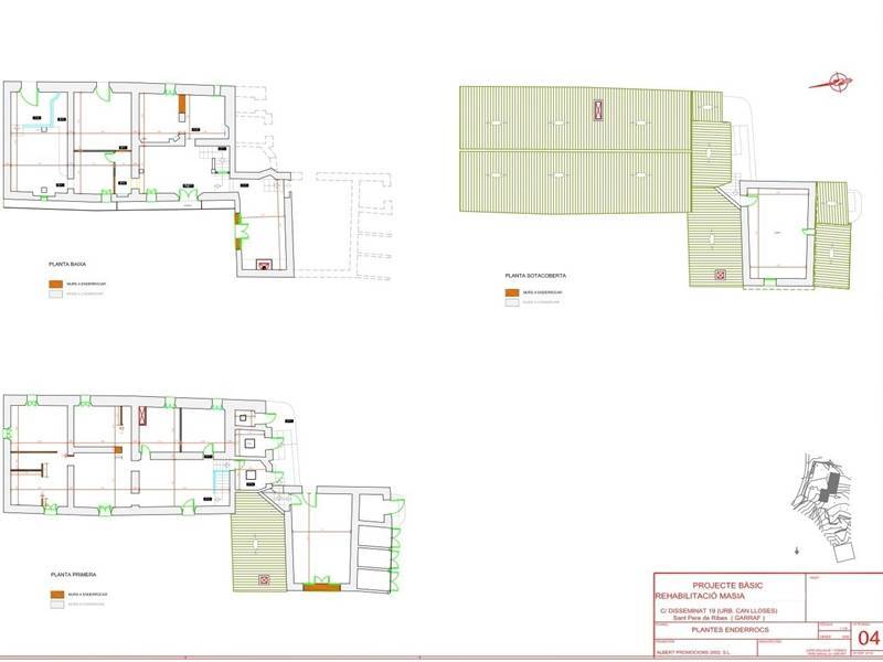
Поместье с 75 Га. угодий, из которых 10 Га. заняты плодоносящими виноградниками DO Penedes, и двумя усадьбами в окрестностях элегантного приморского городка Ситджес на побережье Гарраф.

Основное здание 1900 года общей площадью 1.200 кв.м. частично восстановлено (крыша и стены).

Другое, каменное здание площадью 600 кв.м. не закончено (фундамент и стены).

На территории разбросаны руины небольших каменных построек...

Посадки винограда разных сортов - подробнее по запросу.

Возможно расширение посевов виноградника и постройка винодельни.

6,5 км до г. Ситджес и пляжей.

30 км. от аэропорта Барселоны.